細かく仕切られた4LDKから、1LDK+WICの間取りに一新
大理石や珪藻土、カリンなど自然素材をふんだんに配し、収納はウォークインクローゼットに集約
築25年、部屋数が多く、ひとつひとつが狭かったT様邸。思い切って部屋数を減らし、収納をまとめて、広々LDKを実現。 浴室と洗面室も倍以上に広げ、ガラスドアで一体感を出しています。玄関の大理石の壁、折り上げ天井にLEDの間接照明、 天井近くの壁掛けテレビなど、くつろぎの工夫でいっぱいです。
| Order |
|
|---|---|
| Point |
|
| Data | 工事面積 63m² 工期 約2カ月 |
高級感あふれるホテルライクな住まい
水廻り位置を大きく移動し、家事動線と光を視線をコントロール
暗かったLDKを北側から南に移動し、和室や洗面室との壁を取り払って、広々明るいLDKを実現したY様邸。 対面キッチンで家事をしながら景色が楽しめます。キッチンから洗面室へ直接行けるよう家事動線も一新しました。 廊下の天然石の壁と床、洗面室の珪藻土壁、LDKの石貼りの壁など、自然素材も高級感とぬくもりを感じさせます。
| Order |
|
|---|---|
| Point |
|
| Data | 工事面積 72m² 工期 約2カ月 |
アイランド風キッチンや以前より2サイズ大きい浴室も
ご主人様には趣味のバードウォッチングの道具や写真が入る収納、奥様には家事効率を高める2way動線のキッチンをご提案
築30年、キッチンがLDと分けられているなど、間取りが使いにくかったN様邸。スケルトンリノベーションで、 キッチンは2way動線のアイランド風に、狭かった浴室は2サイズ大きくして、窓側に移動して窓付きにするなど、 玄関位置以外は間取りをすべて変更しています。寝室やトイレの壁面へのエコカラット採用や、 照明演出による癒しの空間づくりにも力を入れました。家具を使わず物をしまえる収納計画も好評です。
| Order |
|
|---|---|
| Point |
|
| Data | 工事面積 54m² 工期 約2カ月 |
下階をパブリックに、上階をプライベートに分けて住みやすく
LDKの滑りにくいペット対応床や、寝室の読書灯など、ご家族の生活に合わせた工夫もいっぱい
築約25年、マンションの上下2フロアを使用していたK様邸。以前はその特性があまり活かせていなかったそうですが、 スケルトンリノベーションで一新。下階は皆で集まるLDKと家事室、上階をそれぞれの個室にあてる間取り変更を行いました。 狭かった玄関を広くして廊下やホールを狭くしたり、浴室に面した壁は騒音に配慮してボードを3重貼りするなど、 きめ細かくプランニングされています。
| Order |
|
|---|---|
| Point |
|
| Data | 工事面積 82m² 工期 約2カ月 |
珪藻土、漆喰、石材、素材も自由自在
キッチン、浴室、洗面室と、水廻り位置はすべて移動し、人と風と光の一番良い動線が形になった、バリアフリーの住まい
築25年の中古マンションを購入し、『スケルトンリノベーション』で間取りもデザインも一新されたI様。「ほかのリフォーム会社とも比べたのですが、『住友不動産のマンションリフォーム』の商品内容が一番しっかりしていたので決めました」とおっしゃいます。その言葉どおり、玄関の横には日本家屋の土間をイメージした収納空間が配されるなど、機能とデザインを両立したプランが実現しました。将来のことを考えて、バリアフリーを実現。寝室は介護しやすいようベッドを縦に並べて配置できるよう設計されています。寝室の珪藻土をはじめ、無垢のフローリングや建具、漆喰、石材が温もりを演出しています。
| Order |
|
|---|---|
| Point |
|
| Data | 工事面積 78m² 工期 約3カ月半 |
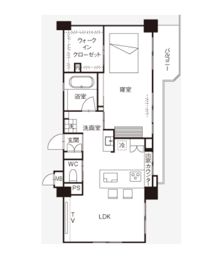
56㎡の空間を部屋数を減らし、収納をまとめて最大限活用
玄関を入って真正面に洗面化粧台を配置したり、出窓を作業カウンターにするなど、大胆に間取りを変更
築15年、56㎡の住まいを、夫婦が住みやすい空間に一新したかったM様ご夫妻。「担当者の方が熱心で気配りも好印象だったので信頼して『住友不動産のマンションリフォーム』に決めました」。プランは空間を最大限に活かす工夫でいっぱいです。玄関正面に洗面化粧台を配置、脱衣室を廊下と共有したり、キッチンの出窓部分を作業カウンターにしたり、ウォークインクローゼットを広くして家中の収納を集約させたり。その工夫でLDKには念願の大型テレビとソファを置くスペースができ、ゆったり映画を楽しめるように。浴室も広くなり、「足を伸ばしてゆったりと入浴する時間が毎日の楽しみです」とM様はお喜びです。一番のお気に入りは「パシフィックリゾートホテル風」の寝室。こだわりのウォールライトと天蓋ベッド、ルーバー扉など、まさにリゾートホテルです。
| Order |
|
|---|---|
| Point |
|
| Data | 工事面積 56m² 工期 約2カ月 |
4DKの細かく仕切られた空間が、1LDK+6畳のWICに大変身
寝室の化粧コーナーに小さな特注の洗面台を配置したり、洗濯機は扉で隠せるようにするなど、女性に優しい配慮も
築35年の住まいをリフォームしたS様。『住友不動産のマンションリフォーム』に依頼した決め手はデザインでした。玄関から廊下にかけては重厚感のある輸入タイルで演出。明るく開放的なLDKは梁型を隠すように間接照明を埋め込み、下の壁にも輸入タイルを。オープンキッチン横には6畳ものウォークインクローゼットを配置して、ワインクーラーやウォーターサーバーも収納し、キッチンと一体で使え、来客時は扉で隠せます。アンティーク照明とエレガントな柄のクロスが印象的な寝室には、化粧に便利な特注の小さな洗面台を置きました。さらにデザインだけでなく、S様が不安だった給排水管や電気配線も一新し、安心で快適な空間の誕生です。
| Order |
|
|---|---|
| Point |
|
| Data | 工事面積 76m² 工期 約2カ月 |
さらに豊富な実例をご紹介